
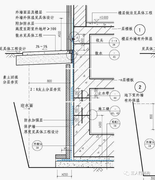
地下室外墙外防水外贴防水材料的保护层有三种做法,即砖保护墙法、软保护层法和水泥砂浆保护层法。
当采用软保护法时,一些建筑专业图集里常有100mm厚聚苯板保护墙的做法,这可能存在安全隐患。聚苯变形大,减弱了土体对建筑物的约束,不能满足地下室顶板嵌固的假定等。应注意提醒建筑师纠正。


外墙防水保护墙不可采用普通聚苯板,无法满足抗震嵌固要求。可采用6mm聚乙烯泡沫塑料片材(有的地方不好买,较容易破,不好保护外防水)、水泥压力板(北京常用,但有节能保温要求时满足不了)。
北京市绿色节能要求,地下室有办公时,需满足节能要求,这时水泥压力板就满足不了,可采用30mm厚挤塑聚苯(抗压能力相对大一些,经过填土挤密后也是可以保证的,与普通的聚苯相比还是薄的)。